Lokal handlowo-usługowy Chodzież, Czechowskiego
Chodzież Pokaż na mapie ›
Ogłoszenie archiwalne Wygasło: Czwartek, 17 Lipiec, 2025 01:34
249 000 zł
Szczegóły ogłoszenia
- Kategoria: Biura i lokale / Sprzedaż
- Przeznaczenie:Inne przeznaczenie
- Powierzchnia:58 m2
- Sprzedaż:Pośrednik
- Cena: 249 000 zł
Opis oferty
Na sprzedaż lokal handlowo-usługowy o powierzchni 58,42 m2 doadaptacji przez nowego nabywcę zlokalizowany w centrum Chodzieży,
niedaleko szkoły oraz dworca kolejowego.
Lokal znajduje się na parterze budynku wielorodzinnego i oferuje
świetne możliwości aranżacyjne, pozwalając na dostosowanie do
własnych potrzeb i preferencji.
Idealnie nadaje się na prowadzenie działalności gospodarczej
(dotychczas w lokalu znajdował się sklep spożywczy).
Dzięki doskonałej lokalizacji w samym sercu miasta lokal zapewnia
bliskość punktów usługowych, szkoły oraz komunikacji publicznej,
co czyni go bardzo atrakcyjnym dla potencjalnych klientów.
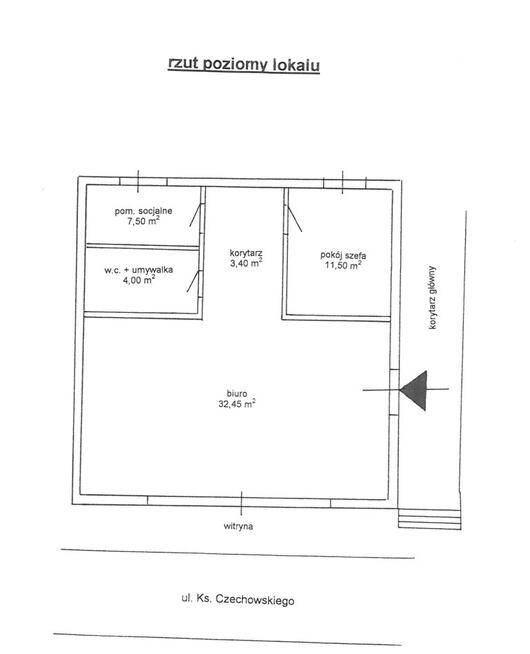
Powierzchnia pomieszczeń przedstawia się następująco:
-punkt obsługi klienta/hala sprzedaży z witryną o pow. 32,45 m2,
-biuro o pow. 11,5 m2,
-WC z umywalką o pow. 4 m2,
-pomieszczenie socjalne o pow. 7,5 m2,
-korytarz o pow. 3,4 m2.
Umów się na prezentacje już dziś i przekonaj się sam o potencjale
tego lokalu.
Powyższa oferta ma charakter informacyjny i nie jest ofertą w
rozumieniu art. 66 par. 1 Kodeksu Cywilnego. Opis nieruchomości
został sporządzony na podstawie informacji uzyskanych od
właściciela i może być aktualizowany. Skontaktuj się z nami w
celu zapoznania się ze szczegółami oferty.
Właścicielem ogłoszenia wraz z jego elementami jest Freedom
Nieruchomości Sp. z o.o. lub podmioty współpracujące. Wszelkie
prawa zastrzeżone. Kopiowanie, rozpowszechnianie oraz korzystanie z
niniejszych materiałów w jakikolwiek inny sposób wykraczający poza
dozwolony użytek określony przepisami ustawy z 4 lutego 1994 r. o
prawie autorskim i prawach pokrewnych (Dz. U. 1994, nr 24 poz. 83 z
późn. zm.) bez pisemnej zgody Freedom Nieruchomości Sp. z o.o. lub
podmiotów współpracujących jest zabronione i może stanowić
podstawę odpowiedzialności cywilnej oraz karnej. Ponadto niniejsze
materiały stanowią tajemnicę przedsiębiorstwa Freedom
Nieruchomości Sp. z o.o. lub podmiotów współpracujących w
rozumieniu ustawy z dnia 16 kwietnia 1993 r. o zwalczaniu nieuczciwej
konkurencji (Dz. U. z 2003 r., Nr 153, poz. 1503 z późn. zm.).n
"Właścicielem ogłoszenia wraz z jego elementami jest Freedom
Nieruchomości Sp. z o.o. lub podmioty współpracujące. Wszelkie
prawa zastrzeżone. Kopiowanie, rozpowszechnianie oraz korzystanie z
niniejszych materiałów w jakikolwiek inny sposób wykraczający poza
dozwolony użytek określony przepisami ustawy z 4 lutego 1994 r. o
prawie autorskim i prawach pokrewnych (Dz. U. 1994, nr 24 poz. 83 z
późn. zm.) bez pisemnej zgody Freedom Nieruchomości Sp. z o.o. lub
podmiotów współpracujących jest zabronione i może stanowić
podstawę odpowiedzialności cywilnej oraz karnej.
Ponadto niniejsze materiały stanowią tajemnicę przedsiębiorstwa
Freedom Nieruchomości Sp. z o.o. lub podmiotów współpracujących w
rozumieniu ustawy z dnia 16 kwietnia 1993 r. o zwalczaniu nieuczciwej
konkurencji (Dz. U. z 2003 r., Nr 153, poz. 1503 z późn. zm.).
Niniejsze ogłoszenie nie stanowi oferty w rozumieniu Kodeksu
Cywilnego, lecz ma charakter informacyjny."
Sprawdź zainteresowanie tym ogłoszeniem
Wyświetlenia
Data dodania
Ostatnio widziany
Obserwujących
Wysłane zapytania
Odsłony telefonu
Powiadom o podobnych ogłoszeniach
Lokalizacja: Chodzież
Kategoria: Nieruchomości » Biura i lokale » Sprzedaż
Cena: od 211500 zł do 286500 zł Powierzchnia : od 49 m2 do 67 m2
Chcę otrzymywać powiadomienia o nowych ofertach
To ogłoszenie jest archiwalne i może być nieaktualne.
Renata Grochocka
Konto firmowe
Na Lento.pl od 02 sty 2024
Odpowiada szybko
Strona użytkownika
- Wypromuj ogłoszenie
- Zgłoś naruszenie
- Edytuj/usuń ogłoszenie
- Udostępnij ogłoszenie
- Dodaj na Facebook















